Naturholz Fenster - IV 68
Natur Holz IV 68 – Fenster & Türen - Dreh-Kipp, nach innen öffnend – Tradition trifft Innovation
Natur Holz
Bei Fenestra-Fenster GmbH, Ihrem Partner für maßgefertigte Holzfenster aus dem Herzen Deutschlands, steht die IV 68 Serie für pure Natürlichkeit und zeitlose Eleganz. Handgefertigt aus vielfältigen, regional bezogenen Hölzern wie Kiefer, Fichte, Lärche, Eiche, Meranti, Red Grandis oder edlem Sipo Mahagoni, verleihen unsere Fenster Ihrem Zuhause Wärme und Charakter.
Stellen Sie sich vor: Ein Fenster, das nicht nur Licht hereinlässt, sondern Ihr Heim atmen lässt – ökologisch, langlebig und ein echter Wertsteigerer.

IV 68: Das vielseitige Dreh-Kipp-Fenster & Dreh-Kipp-Tür-System – nach innen öffnend für maximale Flexibilität und höchste Ansprüche
Tradition trifft Innovation
Die IV 68 Serie ist das bewährte Dreh-Kipp-System für Fenster und Türen, das sich durch seine hohe Stabilität und Benutzerfreundlichkeit auszeichnet. Ideal für Standard- bis große Formate, bietet es Dreh- und Kippfunktion in einem – perfekt für den täglichen Gebrauch. Mit nach innen öffnendem Mechanismus sparen Sie Platz und gewinnen an Sicherheit, da der Flügel geschützt vor Wind und Wetter bleibt. Ob als Einzel- oder Mehrflügel-Variante: Die IV 68 kombiniert traditionelles Holzhandwerk mit moderner Technik für ein Zuhause, das atmet und schützt.
Stellen Sie sich vor, wie Ihre Fenster nicht nur funktionieren, sondern Ihr Leben bereichern – mit natürlicher Wärme, effizienter Dämmung und einfacher Handhabung. Die IV 68 Serie überzeugt durch ihre robuste Bauweise und die Freiheit, die sie schafft: Kipp für frische Luft, Dreh für vollen Durchgang.
Hier die entscheidenden Vorteile auf einen Blick:
100 % natürliche Wärme und Atmosphäre
Holz reguliert das Raumklima natürlich – weniger Kondensat im Winter, kühle Frische im Sommer. Die warme Haptik und sichtbare Maserung machen jedes Fenster zu einem Unikat, das Ihr Zuhause einladend gestaltet.

Perfekt für vielfältige Formate und Anwendungen
Von schmalen Gaubenfenstern bis zu großen Terrassentüren: Die IV 68 passt sich an – mit Flügelbreiten bis 1,40 m und Höhen bis 2,50 m. Ideal für Neubau, Sanierung oder Denkmalschutz.

Keine Kompromisse bei Dichtigkeit und Sicherheit
Dreifach-Dichtungssystem serienmäßig: Wind- und Regendicht, ohne kalte Brücken. Einbruchschutz bis RC2/RC3 schützt, was Ihnen lieb ist – diskret und wirkungsvoll.

Lüftung und Belüftung ohne Aufwand
Integrierte Spaltlüftung im Kippbetrieb sorgt für kontrollierten Luftaustausch – frische Luft, ohne Zugluft oder offene Fenster. Blumen und Vorhänge bleiben ungestört.

Robuste, langlebige Beschläge – technisch und optisch ein Statement
Premium-Getriebe von Roto, Siegenia oder MACO: Ergonomisch, wartungsarm und kindersicher. Die verdeckten Bänder sorgen für ein klares, modernes Design – unsichtbar, aber unübersehbar stark.

Diffusionsoffene Optik & schmale Profile
Mit 68 mm Bautiefe und flächenbündiger Verarbeitung: Maximales Licht, minimale Sichtrahmen. Die natürliche Holzoptik passt zu jedem Stil – von rustikal bis minimalistisch.

Höchste Material- und Verarbeitungsqualität – Made by FENESTRA
Als familiengeführtes Unternehmen aus Deutschland fertigen wir die IV 68 Serie in Premium-Qualität – zertifiziert nach DIN 18055 und PEFC für nachhaltige Forstwirtschaft.
Die Basis: 3-schichtig verleimtes, kammergetrocknetes Massivholz (Feuchtigkeitsgehalt 10–12 %) für absolute Formstabilität. Unser exklusives Flut- und Imprägnierverfahren im Vakuum-Druck schützt biozid-frei vor Feuchtigkeit und Schädlingen, gefolgt von 3-fach Lackaufbau mit diffusionsoffenen, wasserbasierten Acrylfarben (bis 150 µm Schichtdicke).
Wählen Sie aus über 200 Lasur-Tönen, RAL-, NCS- oder Sonderfarben – alle gerucharm und kindersicher (ÖNORM EN 71-3). Bei FENESTRA: 10 Jahre Garantie auf Holzschutz und Funktion!
Natur-Holz
Die klassische Variante: Reine Holzästhetik mit warmer Maserung – für ein authentisches, lebendiges Wohngefühl.
Holz-Aluminium (optional)
Natur-Holz innen für Wärme, wetterfeste Aluminiumschale außen: Ultimativer Schutz und minimaler Pflegeaufwand.
Sonderausführungen
Auf Wunsch mit Akustik- oder Sicherheitsverglasung – maßgeschneidert für Ihr Projekt.
Die Basis: 3-fach keilgezinkte und verleimte Massivholzprofile aus einheimischen oder ausgesuchten Hölzern – für extreme Formstabilität und Langlebigkeit auch bei großformatigen, schweren Elementen.
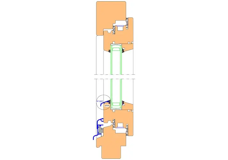
Nach innen öffnendes Dreh-Kipp-System (Fenster & Tür identisch).
Flügelgewichte bis 120 kg und mehr möglich.
1- bis 3-flügelige Ausführungen mit Mitteldichtung serienmäßig.
Hochwertige, verdeckte Beschläge (optional sichtbar, kindersicher).
Einhand-Bedienung, ergonomisch und barrierefrei.
Einbruchschutz bis RC2/RC3.
Uw-Werte bis 0,78 W/m²K (mit 3-fach-Verglasung).
Schalldämmung bis Rw 45 dB.
10 Jahre Garantie auf Verzug und Funktion.
IV 68 – wenn Natürlichkeit, Komfort und Qualität zusammenkommen
Komfort und Qualität
Für alle, die ein Zuhause schätzen, das lebt und schützt: Die IV 68 Serie ist für Sie gemacht – ob Sie Architakt, Bauherr oder Sanierer sind. Sie spart Energie, steigert den Wert Ihres Hauses um bis zu 10 % und bietet ein unschlagbares Preis-Leistungs-Verhältnis. Entdecken Sie, wie Holz Ihr Leben bereichert – nachhaltig, ökologisch und einfach wunderschön.
Jetzt Beratungstermin vereinbaren


